
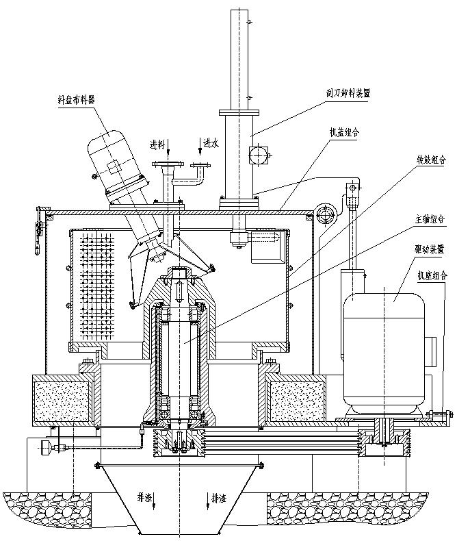
產品結構原理
PGZ
型離心機是依照製藥裝備GMP規gui範fan設she計ji製zhi造zao的de新xin機ji型xing。電dian動dong機ji帶dai動dong轉zhuan鼓gu旋xuan轉zhuan,在zai進jin料liao轉zhuan速su時shi,物wu料liao由you進jin料liao管guan引yin入ru轉zhuan鼓gu。進jin料liao達da到dao預yu定ding容rong積ji後hou停ting止zhi進jin料liao,升sheng至zhi高gao速su分fen離li,此ci時shi可ke進jin行xing洗xi滌di。進jin料liao和he高gao速su分fen離li過guo程cheng中zhong,在zai離li心xin力li作zuo用yong下xia,液ye相xiang物wu穿chuan過guo濾lv布bu和he轉zhuan鼓gu壁bi濾lv孔kong排pai出chu轉zhuan鼓gu,經jing排pai液ye管guan排pai出chu機ji外wai,固gu相xiang物wu截jie留liu在zai轉zhuan鼓gu內nei,分fen離li完wan畢bi轉zhuan速su至zhi卸xie料liao轉zhuan速su狀zhuang態tai,刮gua刀dao自zi動dong升sheng降jiang、旋轉往複運動,將固相物從轉鼓壁刮下,從離心機下部排出。
產品特點與用途
PGZ係列離心機是一種平板式自動刮刀下部卸料、程序控製、自動循環工作過濾離心機。配置全密閉可開式機蓋、平板機座、變頻調速。可自動程序控製完成進料、分離、洗滌、脫水、卸料等工序
,可實現遠近距離控製。具有外觀新穎、結構簡潔、全密閉防爆、自動化程度高、處理量大、分離效果好、運轉平穩、符合GMP標準等特點。適合分離含固相物粒度大於0.05mm的懸浮液,特別適合於人員不宜接近的物料分離。適用於食品、製藥、保健品、國防等行業。
主要技術參數
|
產品名稱
|
PGZ型平板式刮刀卸料離心機
|
|
規格型號
|
PGZ800
|
PGZ1000
|
PGZ1250
|
PGZ1250
(斜向布料)
|
PGZ1360
|
PGZ1600
|
|
轉鼓直徑(mm)
|
800
|
1000
|
1250
|
1250
|
1360
|
1600
|
|
有效容積(L)
|
110
|
140
|
340
|
400
|
450
|
780
|
|
裝料限度(kg)
|
135
|
195
|
450
|
520
|
580
|
1050
|
|
最高轉速(r/min)
|
1500
|
1000
|
1000
|
1000
|
900
|
850
|
|
最大分離因素
|
1008
|
560
|
700
|
700
|
617
|
647
|
|
電機功率(kw)
|
7.5
|
11/15
|
22/30
|
1.5/22/30
|
30/37
|
37
|
|
外形尺寸(mm)
|
1685/1200/1510
|
2010/1450/1720
|
2260/1800/1900
|
2470/1850/2718
|
2500/1960/2500
|
3000/2400/2700
|
|
主機重量(kg)
|
2200
|
3000
|
4800
|
5800
|
5800
|
8500
|